【完成済】富士見市関沢新築一戸建て~全2棟
新築一戸建て
閲覧済み
関沢2丁目 鶴瀬駅 徒歩 10分 4090万円
- おすすめ
- NEW
- 価格変更
- 会員限定
交通
東武東上線 鶴瀬駅 徒歩 10分東武東上線 みずほ台駅 徒歩 15分
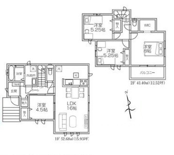
間取り
4LDK築年月
2025年08月完成建物面積
94.08㎡(28.45坪)土地面積
107.67㎡(32.57坪)
- 間取図/区画図
- 区画図

- 間取図/区画図
- 2号棟間取図
- POINT
- 【完成済・内見可】駅近・鶴瀬駅まで徒歩10分♪関沢小学区♪全2棟分譲♪生活環境整っています♪
関沢2丁目 鶴瀬駅 徒歩 10分 4090万円
交通
東武東上線 鶴瀬駅 徒歩 10分東武東上線 みずほ台駅 徒歩 15分
間取り
4LDK築年月
2025年08月完成建物面積
94.08㎡(28.45坪)土地面積
107.67㎡(32.57坪)| 物件名称 | 【完成済】富士見市関沢新築一戸建て~全2棟 |
|---|---|
| 価格 | 4090万円 |
| 所在地 | 埼玉県富士見市関沢2丁目地図 |
| 交通 | 東武東上線 鶴瀬駅 徒歩 10分 東武東上線 みずほ台駅 徒歩 15分 |
| 間取り | 4LDK |
| 部屋 | 1F LDK 16.0帖 、1F 洋 4.5帖 、2F 洋 8.0帖 、2F 洋 5.2帖 、2F 洋 5.2帖 |
| 建物面積 | 94.08㎡(28.45坪) |
| 土地面積 | 107.67㎡(32.57坪) |
| 地目 | 宅地 |
| 土地権利 | 所有権 |
| 築年月 | 2025年08月完成 |
| 建物構造 | 木造(W) |
| 建物階建 | 2階建 |
| 階毎の面積 |
|
| 総戸数/販売戸数 | 2戸/2戸 |
| 駐車場 | あり 2台 敷地内 カースペース |
| 建築確認番号 | 第HPA-25-05140-1号 |
|---|---|
| 設備・条件 | システムキッチン追い焚きカウンターキッチントイレ2ヶ所温水洗浄便座省エネ給湯器ウォークインクローゼット床下収納フローリング複層ガラス24時間換気システムTVドアホンバルコニー閑静な住宅街日当り良好建設住宅性能評価付設計住宅性能評価付南面バルコニー瑕疵保険(国交省指定)保証利用可フラット35・S適合証明書新築時・増改築時の設計図ガス:都市ガスコンロ:ガス、三口汚水:公共下水(接続済)雑排水:公共下水(接続済)水道:公営水道(接続済)洗濯機置場:室内トイレ:専用、水洗 |
| 都市計画 | 市街化区域 |
| 用途地域 | 第一種中高層住居専用地域 |
| 建ぺい率/容積率 | 60%/200% |
| 国土法の届出 | 不要 |
| セットバック | なし |
| 私道負担 | なし |
| 接道状況 | 一方 南:幅員4.0m公道 |
| 引渡時期 | 相談 |
| 学区 | 関沢小学校 約800m 富士見西中学校 約880m |
| 備考 | 最新の販売状況、ご見学予約は直接当社までお問い合わせくださいませ♪ |
| 物件情報更新日 | 2025年12月20日(物件情報更新日より14日以内に更新) |
| 物件コード | 3828 |
| 取引態様 | 仲介 |
- 地図アクセス
この物件のお問い合わせ先
横田建設株式会社
お電話でのお問い合わせ
049-242-3593
〒350-1133
埼玉県川越市大字砂849番地3
- [ TEL ]
- 049-242-3591
- [ FAX ]
- 049-244-7717
- [ 営業時間 ]
- 9:00~18:30
- [ 定休日 ]
- 毎週火曜日、第2・第4水曜日
- [ アクセス ]
- 東武東上線「新河岸」駅徒歩1分
- 一部、完成後1年以上を経過した未入居物件が新築物件として掲載される場合がございます。
- 敷地権利が定期借地権のものは価格に権利金を含みます。
- 完成予想図はいずれも外構、植栽、外観等実際のものとは多少異なる場合がございます。
- CG合成の画像の場合、実際とは多少異なる場合がございます。
- 図面と現況が異なる場合には現況を優先いたします。
- 地積、建物床面積、仕様に変更が生じる場合がございます。
- 物件情報は最新のものをご提供させていただきますが、万一売約済の場合はご容赦ください。
- 建築条件付土地の販売は、売買契約後一定期間内に売主との間で建築請負契約を結ぶことが条件となり、この期間内に建築請負契約が成立しない場合は、受領金を全額返済した上で土地売買契約は白紙となります。
- 掲載物件の取引態様が「仲介」「一般」「専属」「専任」となっているものは、ご成約の際に規定の手数料及びそれに係わる消費税を別途申し受けます。
- 間取り表示のSはサービスルーム(納戸)の略称です。WICはウォークインクローゼット、DENは書斎の略称です。
- 参考プランは、土地の購入者の設計プランの参考に資するための一例であって、参考プランを採用するか否かは土地購入者の自由な判断に委ねられます。


