川越市砂新田5丁目新築一戸建て~全1棟
新築一戸建て
閲覧済み
砂新田5丁目 新河岸駅 徒歩 16分 3690万円
- おすすめ
- NEW
- 価格変更
- 会員限定

- 間取図/区画図
- 間取図

- 間取図/区画図
- 区画図
- POINT
- 前面道路6.2mで南西向き♪陽当り良好♪シューズインクローク・パントリー♪
砂新田5丁目 新河岸駅 徒歩 16分 3690万円
| 物件名称 | 川越市砂新田5丁目新築一戸建て~全1棟 |
|---|---|
| 価格 | 3690万円 |
| 所在地 | 埼玉県川越市砂新田5丁目地図 |
| 交通 | 東武東上線 新河岸駅 徒歩 16分 |
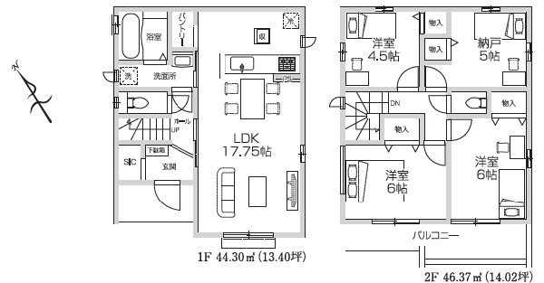
| 間取り | 3LDK+S(納戸) |
| 部屋 | 1F LDK 17.7帖 、2F 洋 6.0帖 、2F 洋 6.0帖 、2F 洋 4.5帖 、2F S(納戸) 5.0帖 |
| 建物面積 | 90.67㎡(27.42坪) |
| 土地面積 | 101.5㎡(30.7坪) |
| 地目 | 宅地 |
| 土地権利 | 所有権 |
| 築年月 | 2026年02月予定 |
| 建物構造 | 木造(W) |
| 建物階建 | 2階建 |
| 階毎の面積 |
|
| 駐車場 | あり 2台 敷地内 カースペース |
| 建築確認番号 | 第HPA-25-13138-1号 |
|---|---|
| 設備・条件 | システムキッチンシャンプードレッサー追い焚きカウンターキッチントイレ2ヶ所温水洗浄便座省エネ給湯器パントリー(食器・食品の収納庫)浴室に窓シューズインクローク床下収納全居室収納フローリング複層ガラス24時間換気システムTVドアホンバルコニー閑静な住宅街日当り良好建設住宅性能評価付設計住宅性能評価付南面バルコニー瑕疵保険(国交省指定)保証付フラット35・S適合証明書新築時・増改築時の設計図整形地ガス:都市ガスコンロ:ガス、三口汚水:公共下水(接続済)雑排水:公共下水(接続済)水道:公営水道(接続済)洗濯機置場:室内トイレ:専用、水洗 |
| 都市計画 | 市街化区域 |
| 用途地域 | 第一種低層住居専用地域 |
| 建ぺい率/容積率 | 50%/100% |
| 国土法の届出 | 不要 |
| セットバック | なし |
| 私道負担 | なし |
| 接道状況 | 一方 南:幅員6.2m公道 |
| 引渡時期 | 2026年3月中旬予定 |
| 学区 | 高階北小学校 約1200m 高階中学校 約610m |
| 備考 | 最新の販売状況、ご見学予約は直接当社までお問い合わせくださいませ♪ |
| 物件情報更新日 | 2026年02月27日(物件情報更新日より14日以内に更新) |
| 物件コード | 3782 |
| 取引態様 | 仲介 |
- 地図アクセス
この物件のお問い合わせ先
横田建設株式会社
お電話でのお問い合わせ
049-242-3593
〒350-1133
埼玉県川越市大字砂849番地3
- [ TEL ]
- 049-242-3591
- [ FAX ]
- 049-244-7717
- [ 営業時間 ]
- 9:00~18:30
- [ 定休日 ]
- 毎週火曜日、第2・第4水曜日
- [ アクセス ]
- 東武東上線「新河岸」駅徒歩1分
- 一部、完成後1年以上を経過した未入居物件が新築物件として掲載される場合がございます。
- 敷地権利が定期借地権のものは価格に権利金を含みます。
- 完成予想図はいずれも外構、植栽、外観等実際のものとは多少異なる場合がございます。
- CG合成の画像の場合、実際とは多少異なる場合がございます。
- 図面と現況が異なる場合には現況を優先いたします。
- 地積、建物床面積、仕様に変更が生じる場合がございます。
- 物件情報は最新のものをご提供させていただきますが、万一売約済の場合はご容赦ください。
- 建築条件付土地の販売は、売買契約後一定期間内に売主との間で建築請負契約を結ぶことが条件となり、この期間内に建築請負契約が成立しない場合は、受領金を全額返済した上で土地売買契約は白紙となります。
- 掲載物件の取引態様が「仲介」「一般」「専属」「専任」となっているものは、ご成約の際に規定の手数料及びそれに係わる消費税を別途申し受けます。
- 間取り表示のSはサービスルーム(納戸)の略称です。WICはウォークインクローゼット、DENは書斎の略称です。
- 参考プランは、土地の購入者の設計プランの参考に資するための一例であって、参考プランを採用するか否かは土地購入者の自由な判断に委ねられます。


