エピナールウェスト「102号室」
アパート
閲覧済み
大字砂久保 新河岸駅 徒歩 17分 10.5万円
- おすすめ
- NEW
- 新築
- 会員限定
交通
東武東上線 新河岸駅 徒歩 17分間取り
2LDK築年月
2014年04月完成専有面積
64.13㎡(19.39坪)敷金(保証金)
なし 敷金積増:-礼金(権利金)
1.50ヶ月共益費・管理費
5,000円
- 外観
- 建物外観

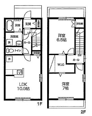
- 間取図/区画図
- 間取図
- POINT
- 2014年築、ペット可のメゾネットタイプの物件です♪ペットケアサービス付♪閑静な住環境♪
大字砂久保 新河岸駅 徒歩 17分 10.5万円
交通
東武東上線 新河岸駅 徒歩 17分間取り
2LDK築年月
2014年04月完成専有面積
64.13㎡(19.39坪)敷金(保証金)
なし 敷金積増:-礼金(権利金)
1.50ヶ月共益費・管理費
5,000円| 物件名称 | エピナールウェスト「102号室」 |
|---|---|
| 賃料 | 10.5万円 |
| 共益費・管理費 | 5,000円 |
| 敷金(保証金) | なし敷金積増:- |
| 礼金(権利金) | 1.50ヶ月 |
| 更新料 | あり(1.30ヶ月) |
| 火災保険 | 要 2年 24,000円 |
| 保証人代行会社 | 保証人代行:加入要 賃貸保証会社利用料:初回保証料:月額賃料等総額の50%、月額保証料:引落総額の1% |
| 仲介料 | あり(1.10ヶ月[税込]) |
| 契約期間 | 2年 |
| その他費用 | クリーニング費用:80,993円 鍵交換代:13,200円 あんしんサポート:1,000円 月額 費用備考:町会費8000円(2年分) |
| 所在地 | 埼玉県川越市大字砂久保地図 |
| 交通 | 東武東上線 新河岸駅 徒歩 17分 |
| 間取り | 2LDK |
| 部屋 | 2F LDK 12.1帖 、2F 洋 4.7帖 、1F 洋 7.8帖 |
|---|---|
| 専有面積 | 64.13㎡(19.39坪) |
| 築年月 | 2014年04月完成 |
| 所在階/建物階建 | 地上1階 102/2階建 |
| 主要採光面 | 南西 |
| 引渡時期 | 2026年2月中旬予定 |
| 駐車場 | あり 1台 敷地内 平置 有料 5,500円(税込) |
| 設備・条件 | シャンプードレッサー追い焚きカウンターキッチン浴室乾燥機給湯洗面化粧台シューズボックスウォークインクローゼット玄関収納フローリングTVドアホンバルコニー閑静な住宅街日当り良好メゾネット駐輪場インターネット利用無料カードキーガス:集中プロパン汚水:公共下水(接続済)雑排水:公共下水(接続済)水道:公営水道(接続済)洗濯機置場:室内冷暖房:エアコンインターネット:光トイレ:専用、水洗バス:専用、バス・トイレ別シャワー:ありペット:可楽器:不可 |
| 学区 | 高階北小学校 約850m 高階中学校 約1000m |
| 備考 | ※ペットは犬・猫2匹まで 違約金:1年未満のご解約の場合1ヶ月分 最新の空室状況、ご見学予約は直接当社までお問い合わせくださいませ♪ |
| 物件情報更新日 | 2026年01月26日(物件情報更新日より14日以内に更新) |
| 物件コード | 3883 |
| 取引態様 | 仲介 |
| 契約条件 | 普通借家権 |
- 地図アクセス
- ストリートビュー
この物件のお問い合わせ先
横田建設株式会社
お電話でのお問い合わせ
049-242-3592
〒350-1133
埼玉県川越市大字砂849番地3
- [ TEL ]
- 049-242-3591
- [ FAX ]
- 049-244-7717
- [ 営業時間 ]
- 9:00~18:30
- [ 定休日 ]
- 毎週火曜日、第2・第4水曜日
- [ アクセス ]
- 東武東上線「新河岸」駅徒歩1分
- 間取り表示のSはサービスルーム(納戸)の略称です。WICはウォークインクローゼット、DENは書斎の略称です。
- 図面と現況が異なる場合には現況を優先いたします。
- 物件情報は最新のものをご提供させていただきますが、万一成約済の場合はご容赦ください。
- 掲載物件の取引態様が「仲介」となっているものは、ご成約の際に規定の手数料及びそれに係わる消費税を別途申し受けます。


